FOR SALE BY ONLINE AUCTION ENDING 15TH AUGUST 2025 AT 12:00PM. THE PROPERTY IS SOLD UNDER UNCONDITIONAL AUCTION TERMS AND CONDITIONS.
Spacious Six-Bedroom End-Terraced Home with HMO – Ideal Investment Opportunity in Heaton
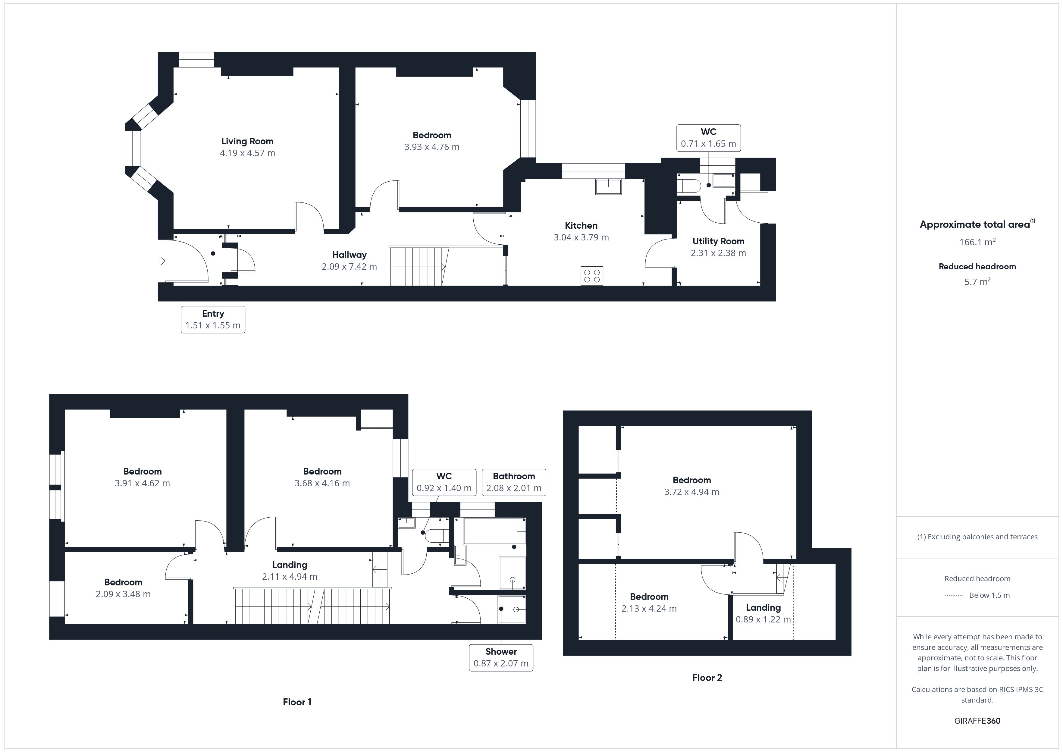
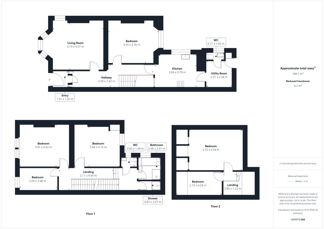
This generously proportioned six-bedroom end-terraced property is set over three floors, offering extensive living accommodation ideal for investors or large families alike. Located in the ever-popular area of Heaton, this home benefits from access to a wide range of local amenities and convenient transport links.
Upon entering the property, you are welcomed by a spacious hallway leading into a lounge. Also situated on the ground floor is a double bedroom, ideal for guests or use as a home office, alongside a fitted kitchen that offers ample room for appliances. A separate utility room provides further practicality, while a downstairs WC adds to the home's everyday convenience.
The first floor comprises three bedrooms, all of which are well-proportioned. This floor also features a family bathroom, a separate shower and an additional WC – ideal for shared living arrangements. The second floor completes the home with two further spacious double bedrooms, providing flexible accommodation that would suit a variety of needs.
This property is currently set up as a House in Multiple Occupation (HMO), making it an excellent opportunity for investors seeking a ready-to-go rental property. Its location in Heaton ensures high rental demand.
A rare opportunity to acquire a sizeable and versatile property in a sought-after residential area, early viewing is highly recommended to fully appreciate the space and potential on offer.
This property is being sold subject to unconditional auction terms and conditions.
Timescales
Immediate exchange of contracts. Completion must take place within 28 days.
Buyer Fees
This property is sold subject to a non-refundable purchase premium of 2.4% inc VAT subject to a minimum of £3.000 including VAT. This does not form part of the purchase price.
Deposit
In order to secure the purchase a buyer will pay a deposit of 5% (subject to a minimum of £3,000) which contributes towards the overall purchase price of the property.
The deposit is non-refundable.
Legal Pack
A legal pack is available for this property. We strongly advise all potential bidders thoroughly read through the legal pack prior to bidding, paying particular attention to the special conditions. If you are unsure of anything contained within the pack, please consult a legal representative.
More Information
For further information please contact our auction department on 0191 487 0011 or email auctions@sarahmains.com
ONLINE AUCTION NOTICE
I hereby acknowledge and confirm the following:
Once placed, my bid cannot be withdrawn and will stand until 2 hours after the auction closes. My bid may be accepted by the seller at any time before the close of the auction. I have read and understood the terms of the auction and my bid is placed accordingly. I have read and understood the legal pack applicable to this property and I understand that I am bound by the special conditions contained within. If my bid is successful at any point from now until up to 2 hours after the auction closes, I shall be bound by the lot terms and conditions as advertised online.
The auction will continue to run if there is a bid within 5 minutes of the closing time. After 5 minutes without a bid, providing the reserve price has been met, the highest bidder will be successful. If there is another bid within 5 minutes of the last bid, the auction countdown timer will be restarted for another 5 minutes to allow further bidding. This system makes it fairer for all parties involved and prevents last second bidding.
Please bid in good time before the end of the auction, delaying your bid to the last seconds may disadvantage you if your connection slows or you lose internet connectivity. It is the bidder's responsibility to ensure the bid has been lodged with the auctioneer. The auctioneer accepts no responsibility for bids that are not received or are received late, and reserves the right to reject any bid without notice.
* Generally speaking Guide Prices are provided as an indication of each seller's minimum expectation, i.e. 'The Reserve'. They are not necessarily figures which a property will sell for and may change at any time prior to the auction. Virtually every property will be offered subject to a Reserve (a figure below which the Auctioneer cannot sell the property during the auction) which we expect will be set within the Guide Range or no more than 10% above a single figure Guide.
By setting a proxy bid, the system will automatically bid on your behalf to maintain your position as the highest bidder, up to your proxy bid amount. If you are outbid, you will be notified via email so you can opt to increase your bid if you so choose.
If two of more users place identical bids, the bid that was placed first takes precedence, and this includes proxy bids.
Another bidder placed an automatic proxy bid greater or equal to the bid you have just placed. You will need to bid again to stand a chance of winning.