NEW TO MARKET. An excellent opportunity to acquire this 2-bedroom terraced house in the popular area of Old Durham Road, Gateshead. The property should appeal to investors, offering strong potential and a straightforward purchase.
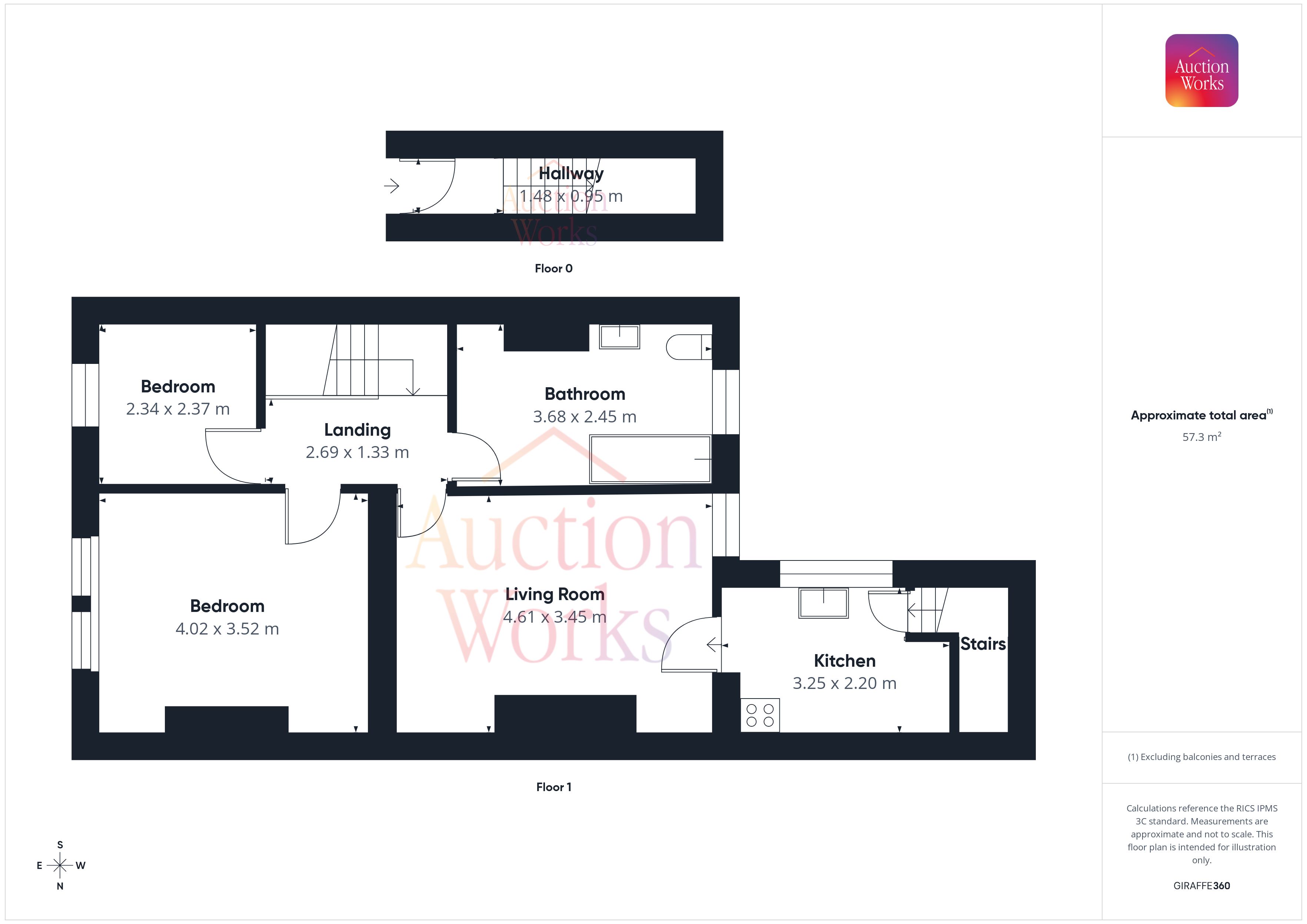
The accommodation includes an entrance hallway, lounge, kitchen, two bedrooms and a bathroom. The property requires updating and benefits from a traditional layout and scope for renovation throughout.
Investment Information
The property offers attractive rental potential, with an estimated income of £700–£800 per calendar month once renovated, making this a compelling option for buy-to-let investors.
(Rental figures are for guidance only.)
Sales Evidence
Sales evidence within the immediate area:
• 393 Old Durham Road – previously sold for £106,000 (6 February 2025)
• 456 Old Durham Road – previously sold for £93,000 (14 June 2024)
Close to local shops, bus routes, Saltwell Park and major transport links, the property enjoys a convenient location that continues to attract strong interest from buyers and tenants.
The property is offered at a competitive price to ensure a sale and represents an excellent opportunity for purchasers seeking value and further potential.
Here’s What to Do Next
Visit – Review the full auction terms via -
Call – Contact our team to book a viewing.
Register – Ensure you are registered prior to the auction opening date.
Legal Pack – Download and review the legal pack to access all relevant property and legal information.
Prior Auction Offer – Want it now? Submit a prior auction offer through a member of our staff. All offers are forwarded directly to the seller for consideration.
Bidding – Bidding is completed entirely online through our intuitive bidding system.
Sale Method
This property is offered for sale via unconditional auction terms and conditions.
All interested parties are advised to carry out their own due diligence prior to bidding. Full guidance and support are available from the team upon request.
For further information or to register your interest, please contact our team.
Terms & Timescales
This property is being sold subject to unconditional Auction terms and conditions.
Immediate exchange of contracts. Completion must take place within 28 days.
Legal Pack
A legal pack is available for this property. We strongly advise all potential bidders thoroughly read through the legal pack prior to bidding, paying particular attention to the special conditions. If you are unsure of anything contained within the pack, please consult a legal representative.
Deposit
In order to secure the purchase a buyer will pay a deposit of 5% (subject to a minimum of £3,000) which contributes towards the overall purchase price of the property.
The deposit is non-refundable.
Buyer Fees
This property is sold subject to a non-refundable purchase premium of 2.4% inc VAT, subject to a minimum of £3,600 inc VAT. This does not form part of the purchase price.
More Information
For further information please contact our auction department on or email
ONLINE AUCTION NOTICE
Once placed, my bid cannot be withdrawn and will stand until 2 hours after the auction closes. My bid may be accepted by the seller at any time before the close of the auction. I have read and understood the terms of the auction and my bid is placed accordingly. I have read and understood the legal pack applicable to this property and I understand that I am bound by the special conditions contained within. If my bid is successful at any point from now until up to 2 hours after the auction closes, I shall be bound by the lot terms and conditions as advertised online. The auction will continue to run if there is a bid within 5 minutes of the closing time. After 5 minutes without a bid, providing the reserve price has been met, the highest bidder will be successful. If there is another bid within 5 minutes of the last bid, the auction countdown timer will be restarted for another 5 minutes to allow further bidding. This system makes it fairer for all parties involved and prevents last second bidding.
Please bid in good time before the end of the auction, delaying your bid to the last seconds may disadvantage you if your connection slows or you lose internet connectivity. It is the bidder's responsibility to ensure the bid has been lodged with the auctioneer. The auctioneer accepts no responsibility for bids that are not received or are received late, and reserves the right to reject any bid without notice.
* Generally speaking Guide Prices are provided as an indication of each seller's minimum expectation, i.e. 'The Reserve'. They are not necessarily figures which a property will sell for and may change at any time prior to the auction. Virtually every property will be offered subject to a Reserve (a figure below which the Auctioneer cannot sell the property during the auction) which we expect will be set within the Guide Range or no more than 10% above a single figure Guide.
By setting a proxy bid, the system will automatically bid on your behalf to maintain your position as the highest bidder, up to your proxy bid amount. If you are outbid, you will be notified via email so you can opt to increase your bid if you so choose.
If two of more users place identical bids, the bid that was placed first takes precedence, and this includes proxy bids.
Another bidder placed an automatic proxy bid greater or equal to the bid you have just placed. You will need to bid again to stand a chance of winning.