FOR SALE BY ONLINE AUCTION ENDING 17TH MAY 2021 12PM. THE PROPERTY IS SOLD UNDER UNCONDITIONAL AUCTION TERMS AND CONDITIONS.
VIEWING BY APPOINTMENT ONLY.
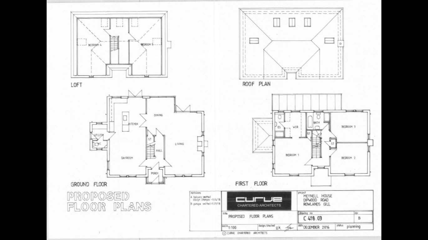
Situated off Dipwood Road in the highly regarded location of Rowlands Gill we offer this plot of land with planning permission for a five bedroom, two storey detached house. The site will be accessed from Derwent Avenue and the location offers convenient for access to local shops, public transport services and road links. Full details of existing plans are available upon request and viewing of the site is strictly via appointment with the agent.
This property is being sold subject to unconditional purchase premium auction terms and conditions.
Timescales
Immediate exchange of contracts. Completion must take place within 28 days.
Buyer Fees
This property is sold subject to a non-refundable purchase premium of 2.4% inc VAT, subject to a minimum of £2,400 inc VAT. This does not form part of the purchase price.
Deposit
In order to secure the purchase a buyer will pay a deposit of 5% (subject to a minimum of £3,000) which contributes towards the overall purchase price of the property.
The deposit is non-refundable.
Legal Pack
A legal pack is available for this property. We strongly advise all potential bidders thoroughly read through the legal pack prior to bidding, paying particular attention to the special conditions. If you are unsure of anything contained within the pack, please consult a legal representative.
More Information
For further information please contact our auction department on 0191 239 0812 or email auctions@sarahmains.com
ONLINE AUCTION NOTICE
I hereby acknowledge and confirm the following:
Once placed, my bid cannot be withdrawn and will stand until 2 hours after the auction closes. My bid may be accepted by the seller at any time before the close of the auction. I have read and understood the terms of the auction and my bid is placed accordingly. I have read and understood the legal pack applicable to this property and I understand that I am bound by the special conditions contained within. If my bid is successful at any point from now until up to 2 hours after the auction closes, I shall be bound by the lot terms and conditions as advertised online.
At the point of registration you will be required to insert credit or debit card details as a way of payment towards the deposit and or purchase premium. We will pre-authorise a nominal amount which will be detailed prior to bidding. This amount will only be debited from your account should you be the successful bidder, if you are unsuccessful the agreed amount will be released back to your card within five working days. If you are the successful bidder the agreed amount will be debited at the close of the auction, we will then contact you to confirm if any additional funds are required to cover the deposit and purchase premium. The balance is expected to be paid within the same day as the auction ends.
The auction will continue to run if there is a bid within 10 minutes of the closing time. After 10 minutes without a bid, providing the reserve price has been met, the highest bidder will be successful. If there is another bid within 10 minutes of the last bid, the auction countdown timer will be restarted for another 10 minutes to allow further bidding. This system makes it fairer for all parties involved and prevents last second bidding.
Please bid in good time before the end of the auction, delaying your bid to the last seconds may disadvantage you if your connection slows or you lose internet connectivity. It is the bidder's responsibility to ensure the bid has been lodged with the auctioneer. The auctioneer accepts no responsibility for bids that are not received or are received late, and reserves the right to reject any bid without notice.
* Generally speaking Guide Prices are provided as an indication of each seller's minimum expectation, i.e. 'The Reserve'. They are not necessarily figures which a property will sell for and may change at any time prior to the auction. Virtually every property will be offered subject to a Reserve (a figure below which the Auctioneer cannot sell the property during the auction) which we expect will be set within the Guide Range or no more than 10% above a single figure Guide.
By setting a proxy bid, the system will automatically bid on your behalf to maintain your position as the highest bidder, up to your proxy bid amount. If you are outbid, you will be notified via email so you can opt to increase your bid if you so choose.
If two of more users place identical bids, the bid that was placed first takes precedence, and this includes proxy bids.
Another bidder placed an automatic proxy bid greater or equal to the bid you have just placed. You will need to bid again to stand a chance of winning.